2746 Balmoral Road, Blind Bay
MLS® 10374879
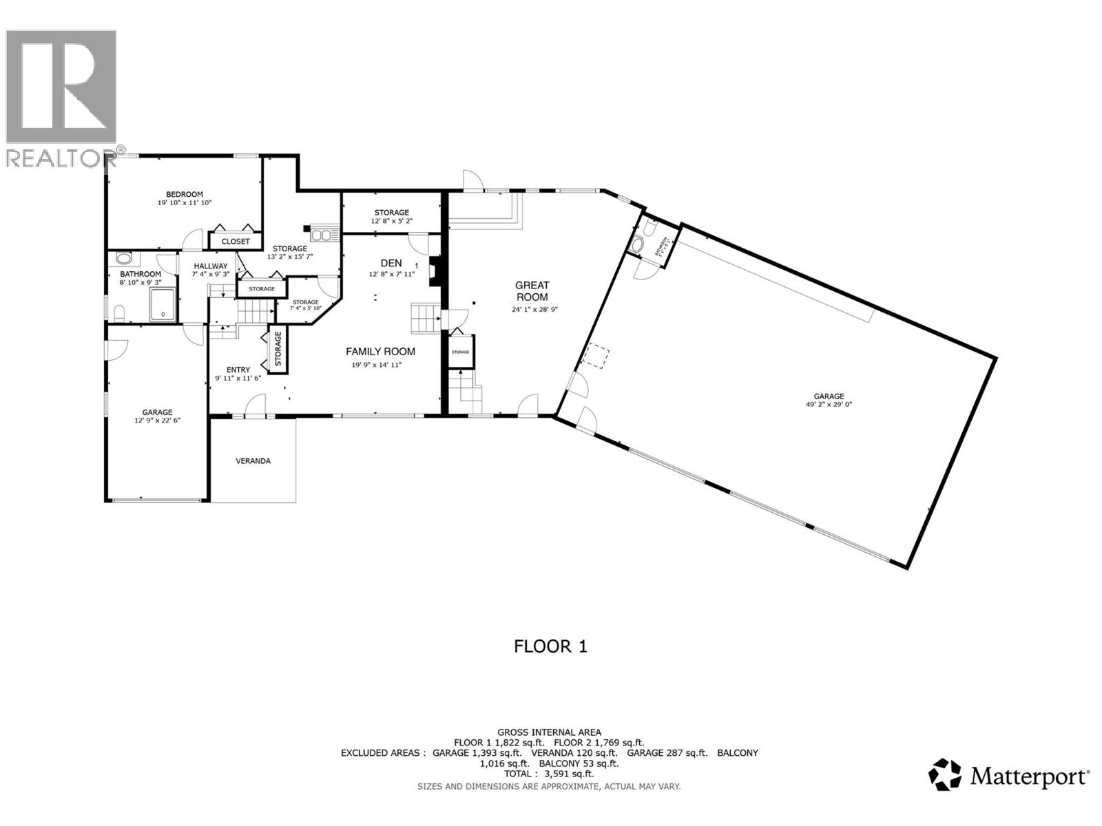
2746 Balmoral Road, Blind Bay All the room you want but close to the lake and and all the activities Blind Bay has to offer. Solid Renovated home and including 4 beds/3.5 baths and more than triple garage with infloor heat. Geothermal forced air in the main house. two hydro meters. Approx 5.13 acres according to BC assessment Zoned RR1 All the room you could want for toys. Mostly Flat yard area with a mountain backdrop creates incredible privacy. Large kitchen with back deck made for entertaining. New Kitchen flooring and new carpet on stairs installed 2026. New dura decking and railings in that last two years. 3 bay infloor heated garage plus single car garage and single carport. And plenty of room and space. Circular driveway. Rare to find, and so close to everything. Boat launch is just down the street. 3D tour. All measurements done by matterport (id:15474)
Property Details
- Full Address:
- 2746 Balmoral Road, Blind Bay, British Columbia
- Price:
- $ 1,299,000
- MLS Number:
- 10374879
- List Date:
- February 12th, 2026
- Lot Size:
- 5.13 ac
- Year Built:
- 1979
- Taxes:
- $ 3,947
Interior Features
- Bedrooms:
- 4
- Bathrooms:
- 3
- Appliances:
- Washer, Refrigerator, Dishwasher, Dryer, Microwave, Cooktop, See remarks
- Flooring:
- Tile, Hardwood, Laminate, Carpeted
- Air Conditioning:
- See Remarks
- Heating:
- Baseboard heaters, Forced air, Other, Geo Thermal
Building Features
- Storeys:
- 2
- Sewer:
- Septic tank
- Water:
- Private Utility
- Roof:
- Asphalt shingle, Unknown
- Exterior:
- Stucco
- Garage:
- Attached Garage, Additional Parking
- Garage Spaces:
- 4
- Ownership Type:
- Freehold
- Taxes:
- $ 3,947
Floors
- Finished Area:
- 3963 sq.ft.
Land
- View:
- Mountain view
- Lot Size:
- 5.13 ac
Neighbourhood Features
- Amenities Nearby:
- Pets Allowed, Rentals Allowed




